Neustrukturierung der Kath. Kirche St. Michael, Neheim Wettbewerb 2009



Aufgabe

Die Kirche St. Michael, 1950 erbaut, soll neben der sakralen Nutzung Funktionen eines Pfarramtes mit einbeziehen.

Das Zusammenspiel zwischen sakralem Kirchenraum und pfarramtlichen Bereichen bietet neue Möglichkeiten der seelsorgerischen Arbeit durch Vernetzung und Präsenz für Besucher unterschiedlicher Anliegen.

Idee

Trennung und fließender Übergang der Bereiche

Konzept

 

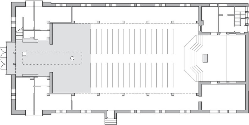
Wichtiges Anliegen ist es, den Kirchenraum weitestgehend zu erhalten, ihn nicht zu zerschneiden oder gestalterisch zu stören.

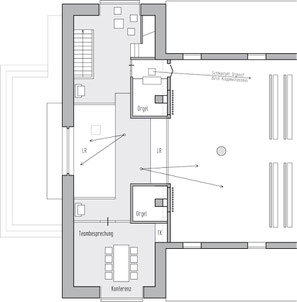
Die wesentlichen Räume der pfarramtlichen Nutzung sind im Eingangsbereich unter der Orgelempore untergebracht. 

Durch den Verzicht auf 5 Bankreihen und das Zusammenrücken der Bankblöcke wird dies räumlich möglich. 

Das Eingangsfoyer ist Ort des Ankommens aber auch Verteiler für die zusammenhängenden Räumlichkeiten auf der rechten Seite. Hier liegen das Pfarrsekretariat und das Büro des Pfarrers mit dem Gesprächs-/Beichtraum, der als liturgischer Raum auch von der Kirche aus zu betreten ist. Auf der linken Seite sind das Büro der Gemeindereferentin,  das Archiv, die notwendige Haustechnik und ein WC angeordnet. 

Der Konferenzraum im Bereich der Orgelempore ist ebenfalls vom Foyer aus über die vorhandene Treppe zu erreichen.

Die Planung einer neuen Orgel kommt der Neustrukturierung entgegen. Die vorhandene Decke der Empore kann aufgelöst werden, so dass ein Luftraum und Sichtverbindungen vom Eingang in die darüberliegende Ebene entstehen. Ein neuer Steg spannt sich von einer Turmseite zur anderen als Wegeverbindung zum Konferenzraum.

Die Orgel ist neu geordnet, geteilt in zwei Blöcke, und zeigt sich mit ihren Prospektpfeifen an der neuen Wand, die den Rücken des Kirchenraumes bildet. Die neuen Funktionsbereiche erhalten in beiden Türmen neue Fenster. 

Die Fensterflächen werden gebündelt und es erscheint in der Fassade ein langer schmaler Einschnitt, der die Proportionen des Turmes aufnimmt. Hier, wie auch im Eingangsbereich mit Windfang, soll die neue Nutzung deutliche Signale nach aussen setzen. Sie bezieht sich ausschließlich auf den Turmbereich, der in seiner Gestalt eigenständig ist und bleibt. 

Das Kirchenschiff wird in seiner äußeren Gestalt nicht verändert. 

Das Eingangsfoyer ist zunächst ein abgeschlossener Raum, an dem die Erschließungen der pfarramtlichen Bereiche liegen.

Er kann als eigenständiger Aufenthaltsort mit Sitz- und Verweilmöglichkeiten, zur Information oder Kommunikation dienen.


Dem Eingang direkt gegenüber erschließt sich der Kirchenraum. Hier bildet sich die Nahtstelle zwischen Kirche und Foyer. Die verglaste Tür ist über die gesamte Breite des Foyers zu öffnen. Die sich in der Höhe anschließende Transparenz im Bereich der Empore signalisiert eine große Torwirkung. Es ergibt sich ein fließender Übergang zum Kirchenraum.

Es entstehen neue Nutzungsmöglichkeiten für den sakralen Raum: Bewegungsraum, Raum für Ausstellungen, Raum zur Versammlung.

Die Fensterrosette mit der Abbildung des Heiligen Michael, ein wichtiger Identifikationspunkt der Gemeinde, wird vom Foyer und Kirchenraum erlebbar.